Building Study: Peterhouse Technology Park - Western Expansion

Building Study: Peterhouse Technology Park - Western Expansion

Share this:

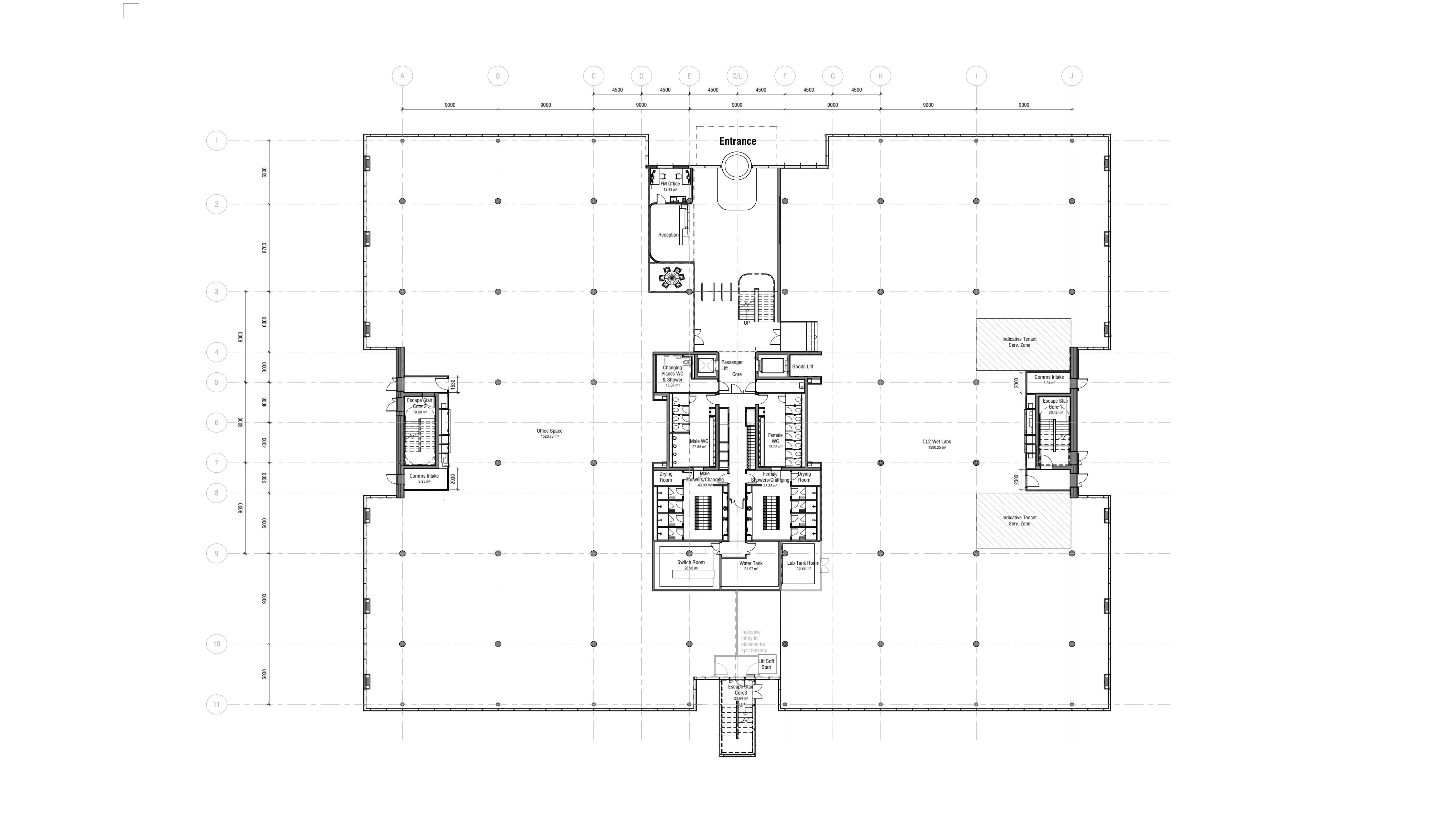
The western expansion of Peterhouse Technology Park for British Land will provide a single, three-storey building with new state-of-the-art laboratory and workspace, landscaping, parking and associated infrastructure. The project design was subject to a rigorous accessibility review by the Greater Cambridge Shared Planning Service Disability Conservative Panel. Here we lay out of the contents of our report and the Panel’s findings.

Lying to the south east of Cambridge city centre, the site is 2.5 miles from the railway station, benefitting from easy access to the M11 and the A14 and is served by a regular bus service to the front of the park. The site is adjacent to Peterhouse Technology Park which is the global headquarters for Arm, designed and delivered by Scott Brownrigg. In terms of site access, staff using the building will park on the western car park where accessible bays are provided closest to the building. Accessible parking is also provided opposite the main building entrance to the north for visitors. The building is located on a sloping site. To maintain a gentle gradient across the site, the building is partly cut into the site on the West side, subsequently the landscaping from the West is terraced down towards the building. At the east side an internal stair is provided down to ground level. 

Social Media Website Image Template 1 (2)
Social Media Website Image Template 1 (2)

ACCESS ACROSS THE SITE

To ensure adequate access across the site, the following landscaping considerations have been incorporated:

  • Block paving - provided in accessible bays north of the building with continuous step free access directly to the northern main entrance.
  • Block paving - provided in accessible bays to the North West which continues uninterrupted to the main building entrance and a pedestrian path that runs around the building.
  • Hard surfacing in the access roadway to the North allow for easy drop off.
  • Outdoor working spaces to the South are provided for all, with easy level access through the building.
  • A continuous path, incorporating a trim trail, runs around the site.

 

ACCESS TO BUILDING

Entrance Door:

  • Access to the building via the main visitor’s entrance to the North is provided via a circle slide door with a minimum clear opening of 1500mm. This is in excess of the requirements for wheelchair use under table 2 of AD.M.
  • Double doors slide open upon presence detection from door sensors. Circle slide doors provide a noticeable entrance feature on the front of the building to guide visitors to the entry point.
  • Outside the entrance, a video entry post with accessible controls to contact the receptionist to be granted access are provided.
  • The circle slide door will create a draft lobby (meeting the provisions set out in 2.29 under AD.M). The internal size of the space is at least 2.9m wide and deep, giving enough space for a wheelchair and guide.
  • There will be a level matting system within the lobby to assist in drying pedestrian shoes with an additional matching run off matting system within the main entrance area. Flooring within the reception will have a minimum PVT slip resistance of 36. 
  • Staff entrance to the east and west will be via an outward opening leaf and half door with minimum 1000mm clear. The landlord will have provision to install powered controls to be wall mounted internally and on a post externally (in compliance with provisions under AD.M 2.21).
Social Media Website Image Template 2 (1)
Social Media Website Image Template 2 (1)

ACCESS TO RECEPTION

  • The reception is at a level entry position from the main entrance carefully positioned to take account of the slope of the site.
  • The reception desk is designed to be fully accessible and identifiable. The dimensions of the desk will cater for both standing and seated persons (All in accordance with provisions set out under AD.M 3.6).
  • The reception space has a clear view through to the reception desk, lifts and to the accessible feature stair.
  • The reception area has a hearing enhancement system incorporated into the reception desk.

Feature Stair:

  • The accessible feature stair enables access to all office levels within the building.
  • The stair width is 1400mm wide and has risers not greater than 170mm, and tread depth minimum of 280mm.
  • The treads and risers will be clearly marked with contrasting colour at the edge, which also provide additional grip.
  • Continuous handrails on both sides will be set within the guarding with no obstructions.
Social Media Website Image Template 3 (1)
Social Media Website Image Template 3 (1)

LIFTS AND SERVICE CORE

Lifts:

  • Two lifts at the rear of the reception space provide access to all office and laboratory floors.
  • The specification for both lifts is compliant with the provisions set out under 3.34 of AD.M, with the dimensions sized to cater for all occupants of the building. The passenger lift allows for 10 person and this would comfortably serve the whole building.
  • An additional dual purpose passenger / goods lift has been provided. This will primarily be used as an additional passenger lift to ensure during routine maintenance there is always a lift available. This lift has also been designed as a goods lift to support back of house operations.
  • All lift landings are generously sized for ease of access to the front of the lift.
  • Audible and visual indicators are provided within lift and landing to provide clear communication.

Service Core:
The cores are accessed via doors with suitable eye level vision screens, providing minimum 900mm clear opening. There is a clearance of 300mm from leading edge of the door to the wall return (in compliance with provisions set out under 3.10 of AD.M).

  • The doors are fitted with door closers providing a resistive force not more than outlined under 3.10a.
  • The cores on every floor have an accessible shower room and toilet (in accordance with BS8300-2 Fig.30 and AD.M 5.18r) as well as an ambulant cubicle (in accordance with diagram 21 and 5.14 of AD.M) and enlarged cubicle within each separate-sex wash room.
  • On the ground floor in the core that would be accessible to visitors, the design includes a Changing Places cubicle in line with BS8300 and recommendations from the Greater Cambridge Shared Planning Service Disability Conservative Panel. This significantly improves the building’s access credentials.
  • Internal arrangements for the accessible toilet facilities are handed between floor to allow ease of access on and off the facilities.
Social Media Website Image Template 4
Social Media Website Image Template 4

OTHER CONSIDERATIONS

Escape Stairways:

  • All escape stairs are accessible but also contain a landing space for fire escape refuge. Providing a minimum area of 1400 X 900mm clearance from the escape route and a dedicated call point (in accordance with BS9999 Appendix G).

Terrace Access:

  • All terraces at second floor are fully accessible spaces with level thresholds.

Manifestation:

  • All glazing panels that have less than 600mm drop between spaces at floor level will have a manifestation (in accordance with AD.K Section 7).

General Items:

  • Switches and controls throughout will be set in compliance with AD.M 4.30.
  • The colour contrasting of finishing’s are suitable for visually impaired people. Full consideration will be given to colour / luminance contrast between walls / floors, walls / ceilings, walls / doors and partitions, stairs and stair nosings and fixtures and fittings with their backgrounds.
Social Media Website Image Template 5 1
Social Media Website Image Template 5 1

The Panel noted that they’d like to see sliding (pocket) doors on the accessible WCs as these are easier to manoeuvre from a wheelchair. On the ground floor core, which is accessible to visitors, they recommended including a Changing Places cubicle. These are increasingly becoming a feature in places of work and public buildings and are included within BS8300. The upgrade required from the proposed shower rooms would be minimal and yet it would significantly improve the building’s access credentials. The team have taken the decision to incorporate this facility to every level.

In conclusion the Panels said: “This is a very well thought out scheme with an impressive variety of access features proposed. The constraints regarding the gas main and level change that will impact options on entering the building are noted, but the Panel are generally very supportive.”

"At Scott Brownrigg we design for accessibility and inclusion for all from first principles, we consider it fundamentally important that the buildings we create have considered the needs of the whole of our society and enhance everyone’s wellbeing. It is especially important that our workplaces respond to these needs to ensure that there are no barriers to engagement for talented people across the whole spectrum of physical and neurological diversity. We are delighted to have the support of the Greater Cambridge Shared Planning Service Disability Conservative Panel for this great project."

You're looking for an exceptional team.
We're looking for exceptional projects.

Let's start a conversation.

Enquire