Cambium

Cambium

London

Lendlease

Share this:

The Brief

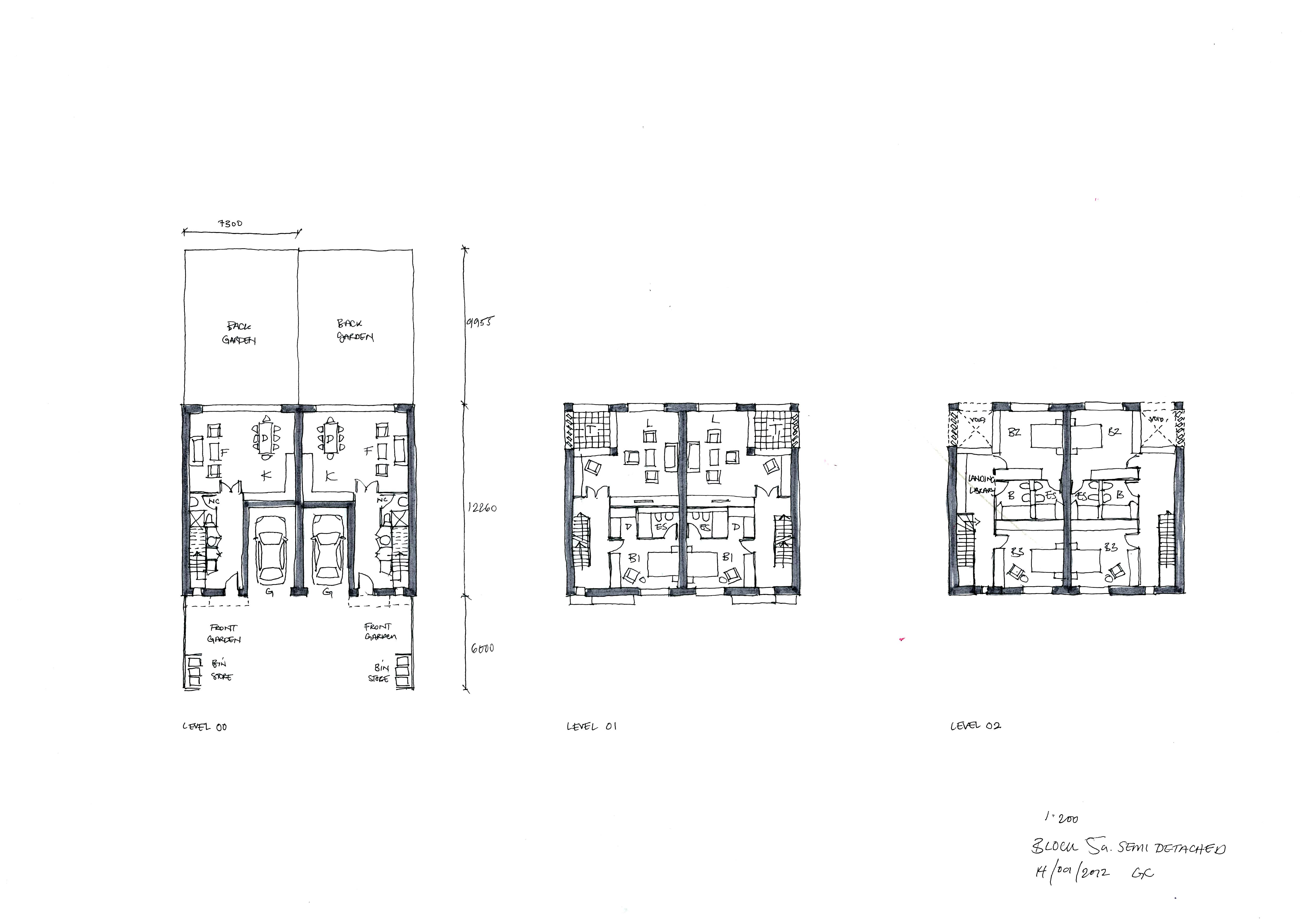
The residential proposals at Cambium provide 110 new homes and form part of a wider strategy to create a new school on a nearby site. We explored how a new community of townhouses and apartments could be created, while respecting the surrounding townscape and context.

Concept

The site is nestled within a residential context, with an existing church located adjacent. Our concept has created a new public realm of streets and spaces around which new homes can be placed. The homes are Mews-type or Townhouse-type according to their situation. An apartment building provides a focal point at the entrance.

120914_Block 5a SemiDetached_Proposed Furniture Layout 2 copy.jpg
120914_Block 5a SemiDetached_Proposed Furniture Layout 2 copy.jpg
14887 N61 Small
14887 N61 Small
14887 N60
14887 N60

Features

Our street and space strategy has allowed more homes to be created than had originally been anticipated. This arrangement has also allowed a historic oak tree planted by Capability Brown to be retained as the central feature of the new open space. A programme to achieve a sustainable residential community has also been developed with the client team.

14887 N63 Small
14887 N63 Small
14887 N62
14887 N62
You're looking for an exceptional team.
We're looking for exceptional projects.

Let's start a conversation.

Enquire